KSV010
Address: 10 Karagiorgi Servias str., 10562 Athens, GRArchitect: Β. Tsagris
Year of construction: 1938-1945
Owner: Naval Share Fund
Levels: 7
Lot area: 1164 m2
Building area: 6,770.82 m2
Floor area: 967.26 m2
Coverage: 83.09 %
Researchers: Maritonia Stavri, Myrsini Dimou
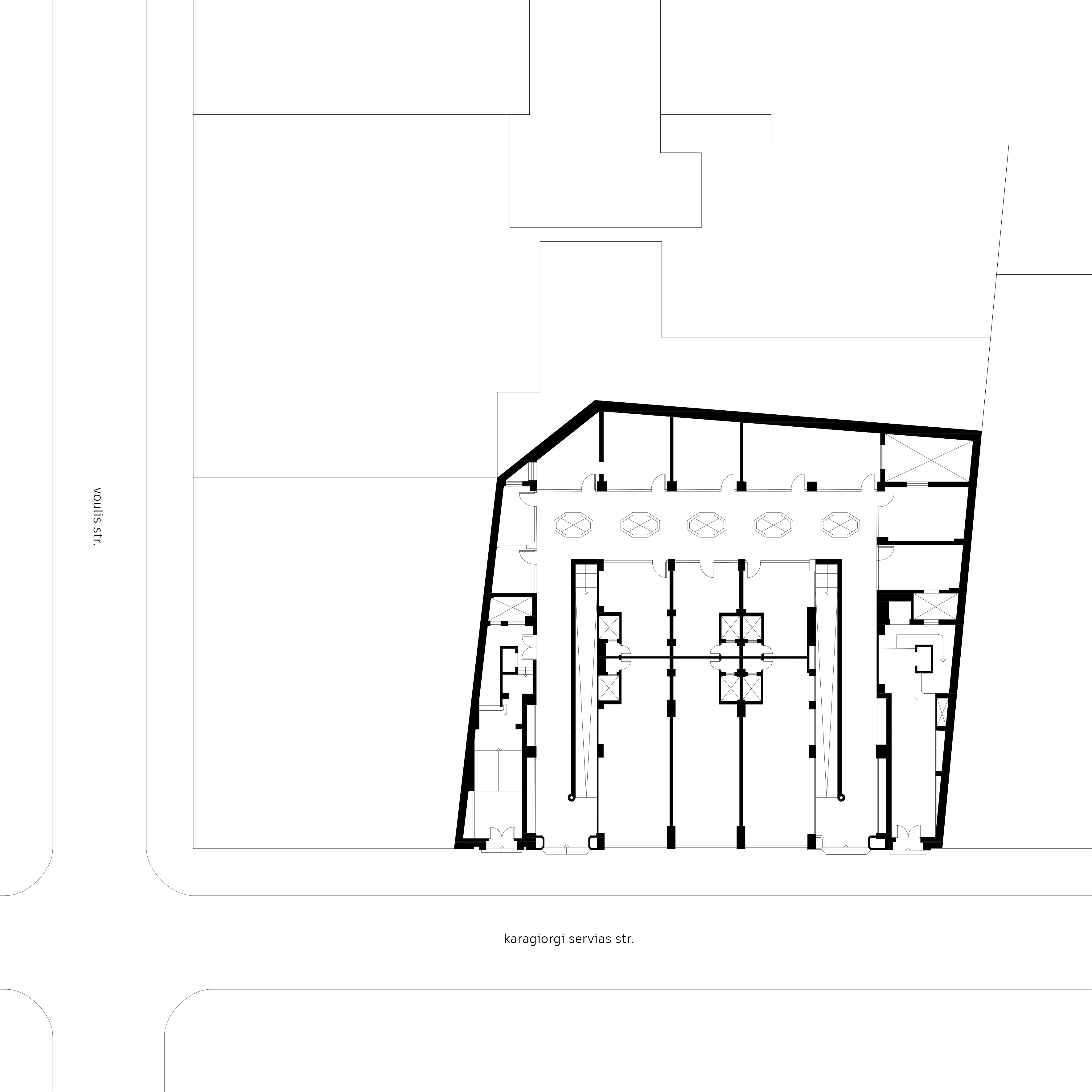
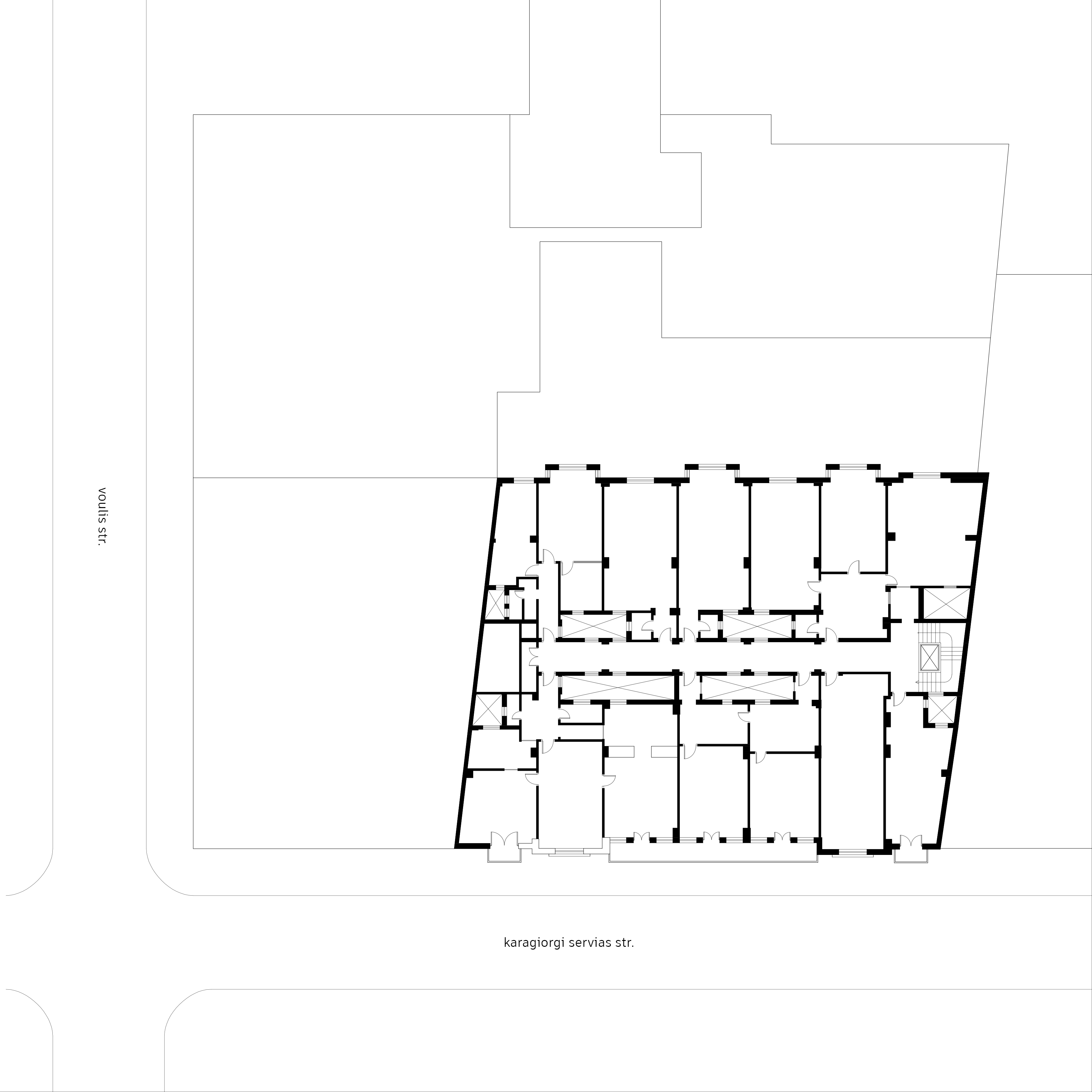
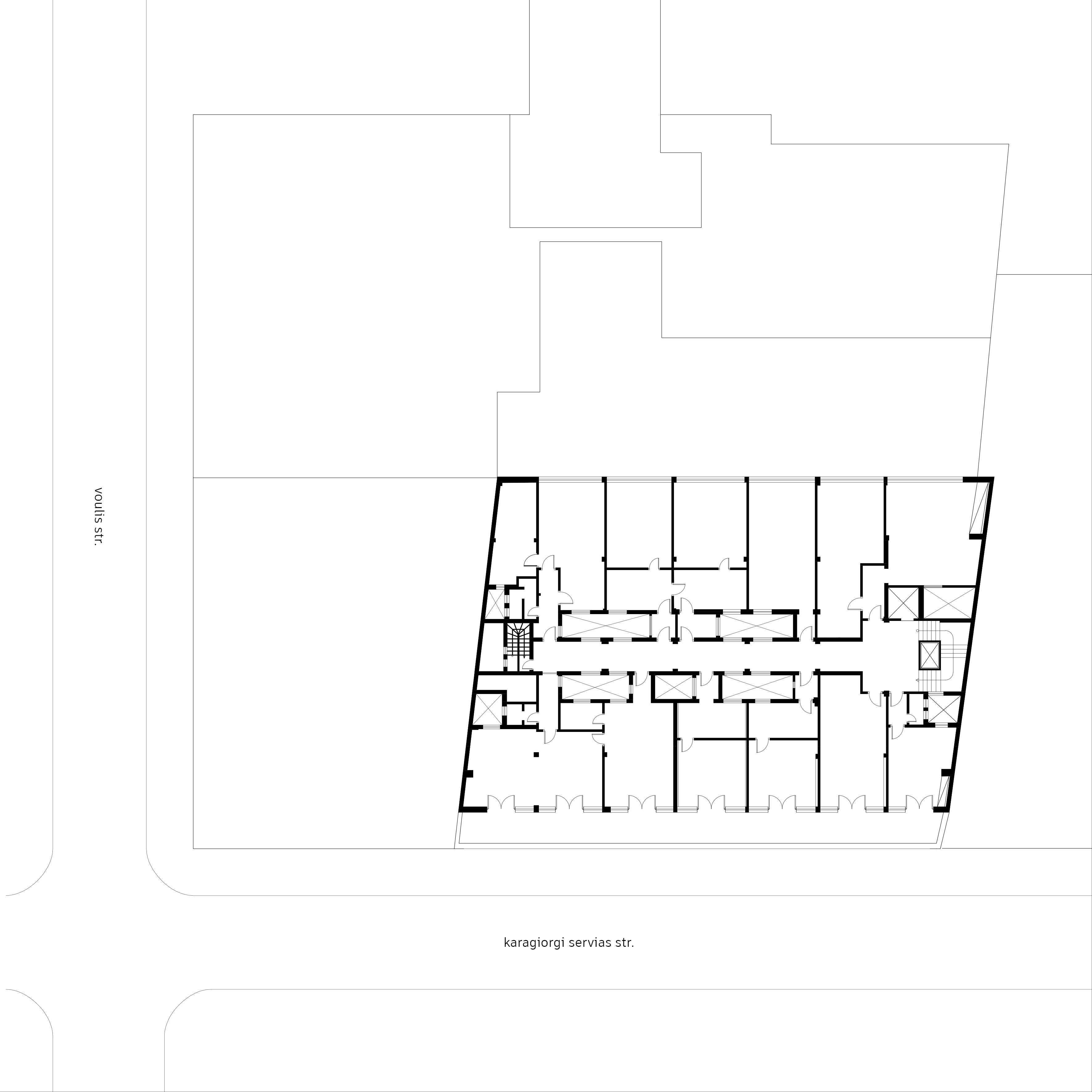
The Ministry of Economy and Finance is located at 10 Karagiorgi Servias Street and belongs to Naval Share Fund and occupies a total of 6770.82 square meters ( m2). It is a work of renowned architecture by the important architect of the period, the refined Vassilios Tsagris (1882-1941) and was constructed between 1938 and 1945 and was originally intended as a leper hospital. The building consists of two basement floors, the ground floor, which houses a gallery with shops, and eight typical floors, which are used entirely by the ministry's offices. The interior is characterized by long, narrow corridors, on either side of which the stacked office rooms unfold, and the main vertical movement is carried out by the imposing marble staircase.
KSV010 analysis booklet









