RETRIEVING ATHENS


Department of Architecture
University of Patras

ART017

Address: 17 Aristotelous str., 11433 Athens, GR
Architect: unknown
Year of construction: before 1955
Owner: Ministry of Health
Levels: 7
Lot area: 1,990 m2
Building area: 12,278 m2
Floor area: 1,754 m2
Coverage: 88.14 %

Researchers: Stella Stafyla, Tania Lampou, Julius Diestel

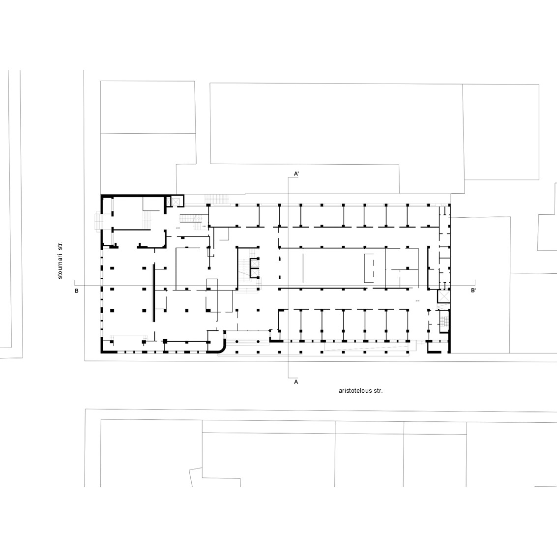
The building, located at 17 Aristotelous Street (P. O. Box 10433,
Athens), houses the services of the Ministry of Health, from shortly  after the Second World War until today. It is a magnificent building of 12,278 square metres, covering almost 90% of the site. Today this is owned by the Ministry of Finance.
This building consists of 7 floors, two of which are later additions. The building is crossed by two atrium spaces, one of which is used as a meeting room. On the ground floor there are offices of the ministryand the technical service, as well as conference rooms or an amphitheatre. The remaining floors are entirely occupied by offices,while in the basement there are other auxiliary areas, such as: carpentry, a carpenter’s workshop, a boiler room and archive rooms.


ART0117 analysis booklet










all drawings and images © Retrieving Athens, DoAUP, Katsota, D., Stafylla S., Lampou T., Diestel J.

plans of existing building courtesy of the Technical Department of the Ministry of Health